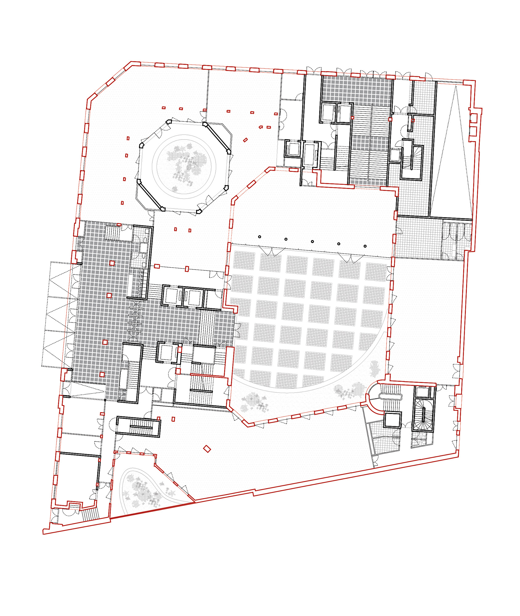
DATA

2018 – 2023, Paris 7e
Bureaux et logements sociaux
ARCHITECTES : DATA + &Givry
BE : SCYNA 4, CCI + POUGET, IMPACT ACOUSTIC + QIOS, BATIR, MAZET&ASSOCIES, CSD, TESS, GAURY, Jardins de Babylone, Studio Jean-Philippe Nuel
MOA : Nexity
18 000 m²
© Maxime Delvaux (photos maquettes), © Artefactory (perspective), © Charles Trève (photos chantier), © Eric Durand (photos curage)