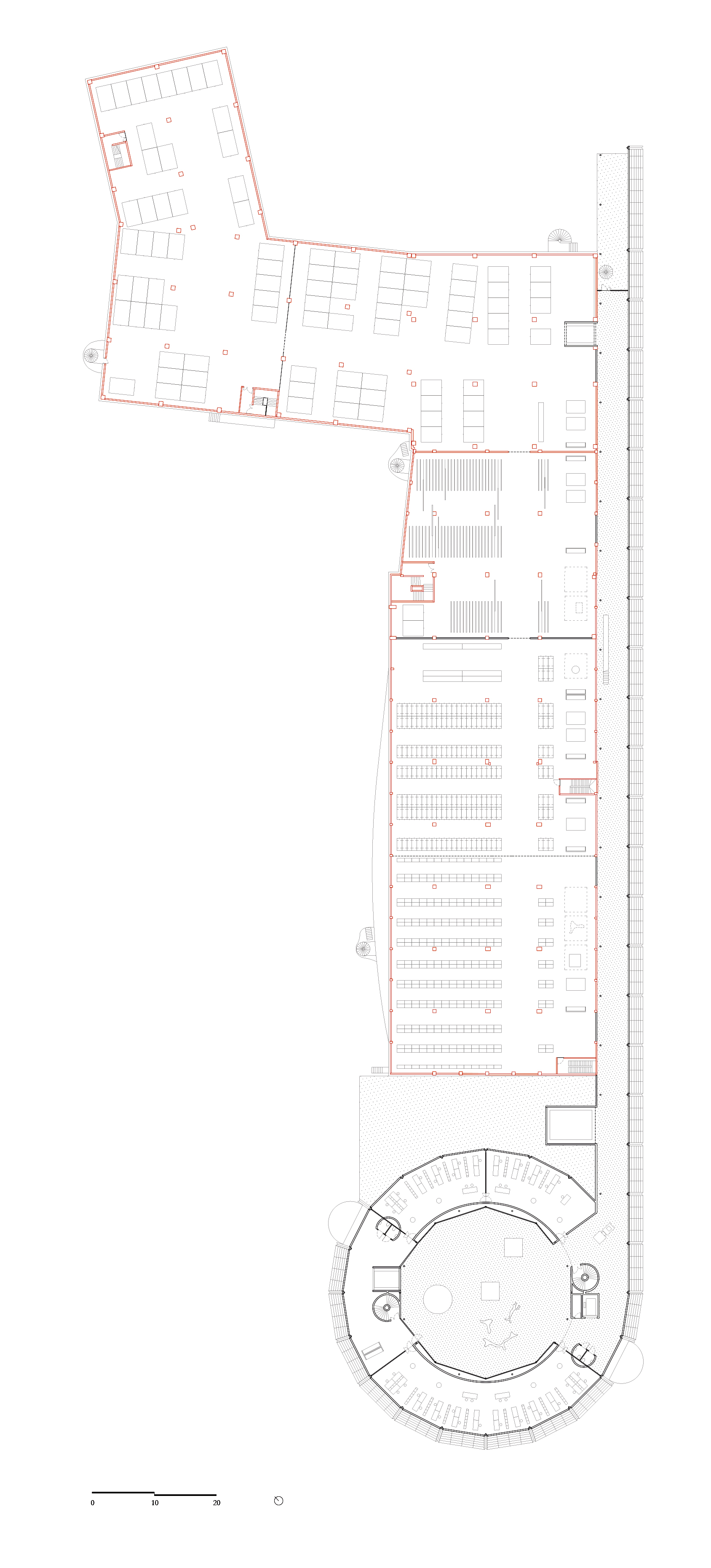
DATA

2017 – 2024, Pantin
Réserves d'oeuvres d'art, bureaux, espaces d'exposition, ateliers de restauration
ARCHITECTES : Bruther + DATA
BE : BATISERF, INEX, BMF, GAMBA, VS-A, LISI, CSD
MOA : DGCA
32 500 m²
© Marvin Leuvrey (photo maquette) © Artefactory (Perspective)