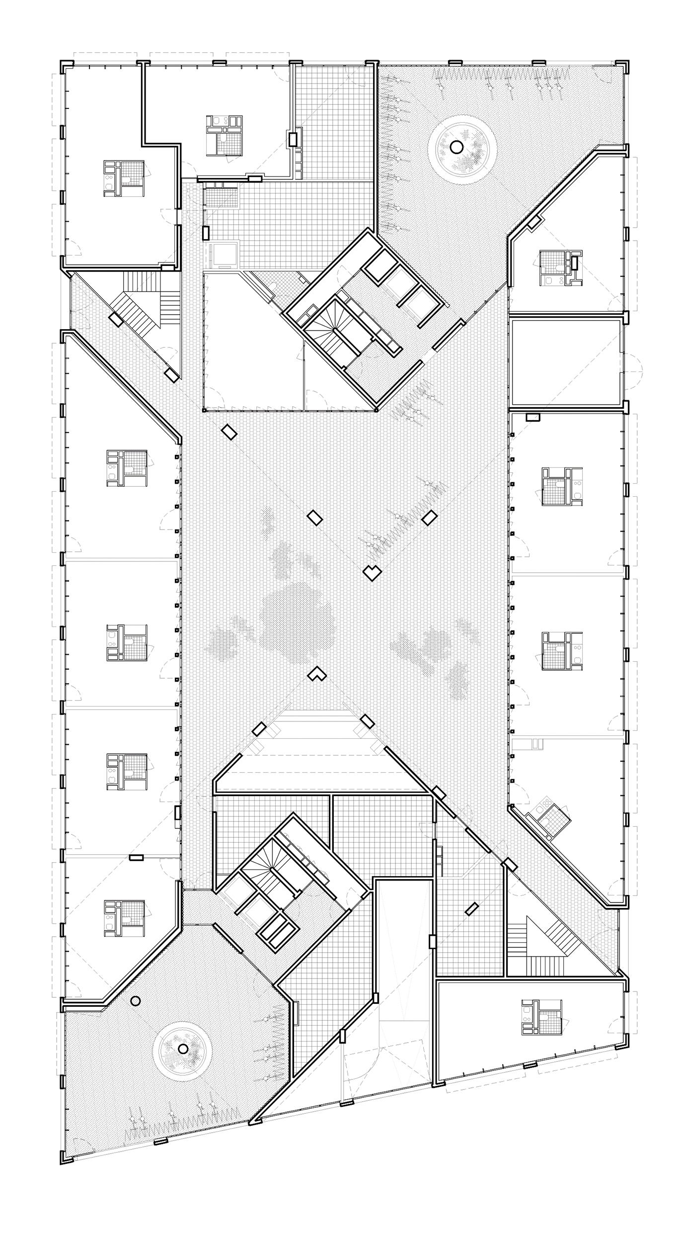
DATA
2018 – 2022, Paris 18e
Logements et commerces
ARCHITECTES : Armand Nouvet + DATA
BE : ELITHIS, EVP, BC ASSOCIÉS
MOA : Vinci Immobilier
11 000 m²
© Arnaud Ledu (photos)
CHA
La Chapelle