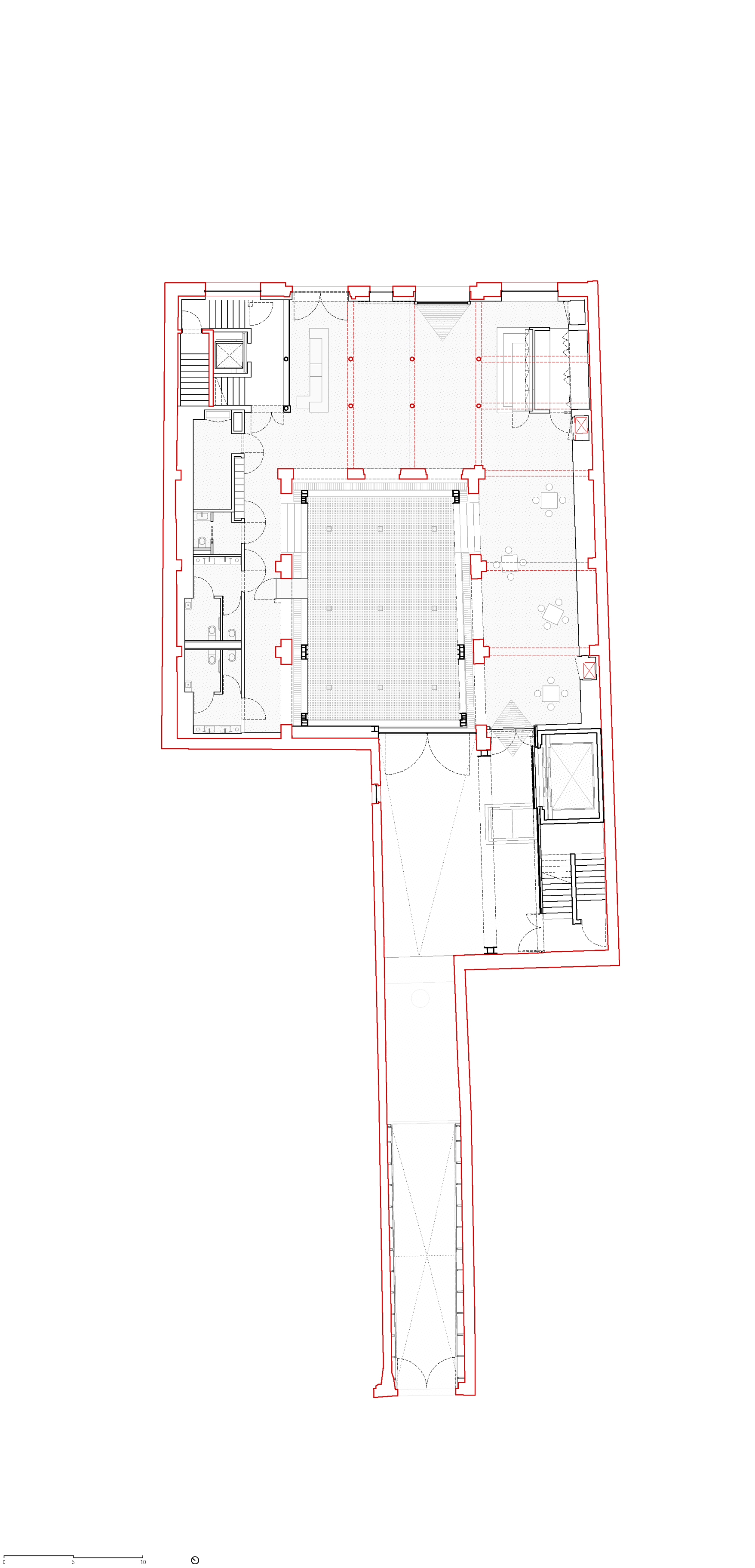
DATA
2012 - 2018, Paris 4e
Fondation d'Art Contemporain
ARCHITECTES : OMA / REM KOOLHAAS + DATA
BE : DUCKS, BMF, MWI, LOUIS CHOULET, LAMOUREUX, MPK CONSEIL
MOA : Galeries Lafayette / Citynove Asset Management
2 400m²
© DSL STUDIO
FON
Lafayette Anticipations