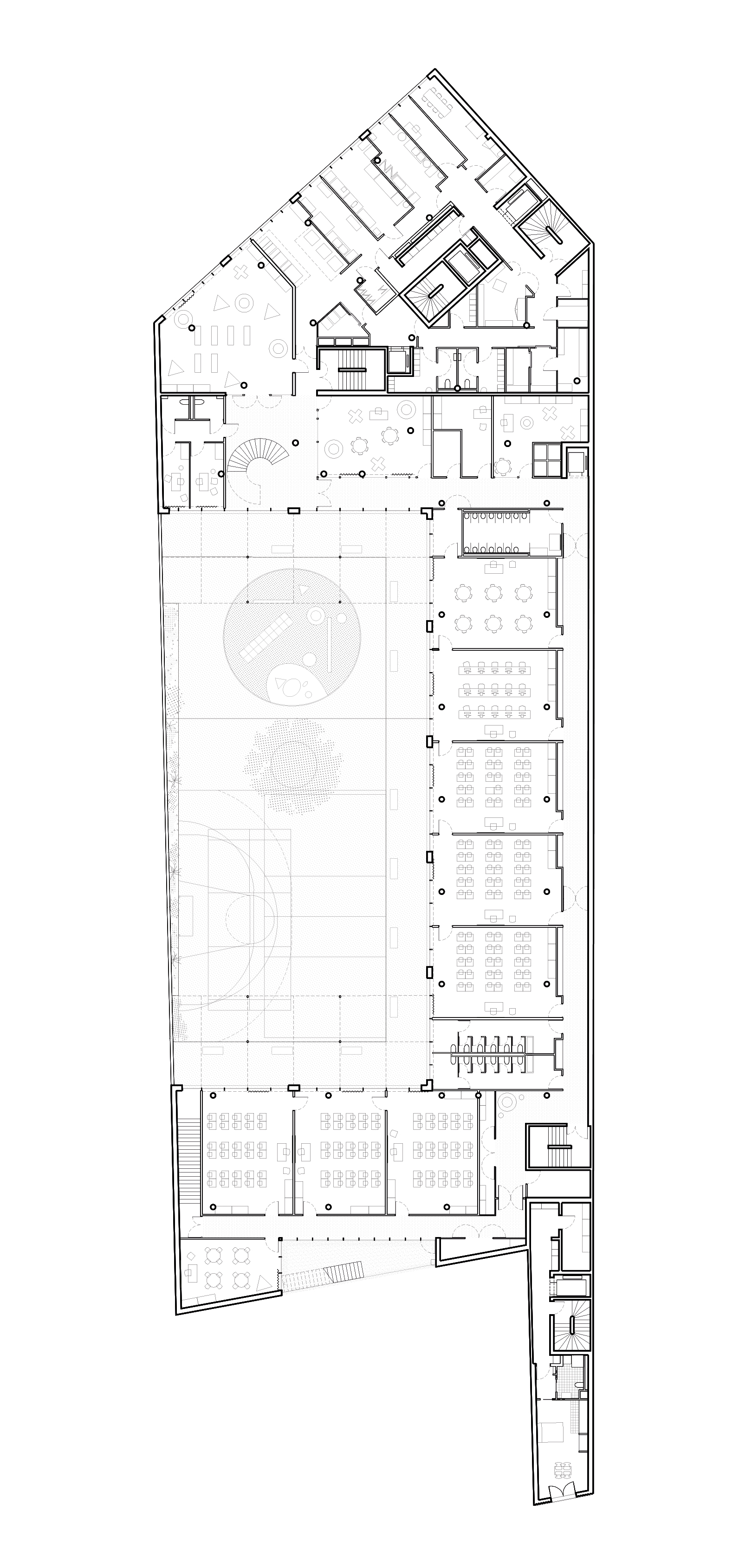
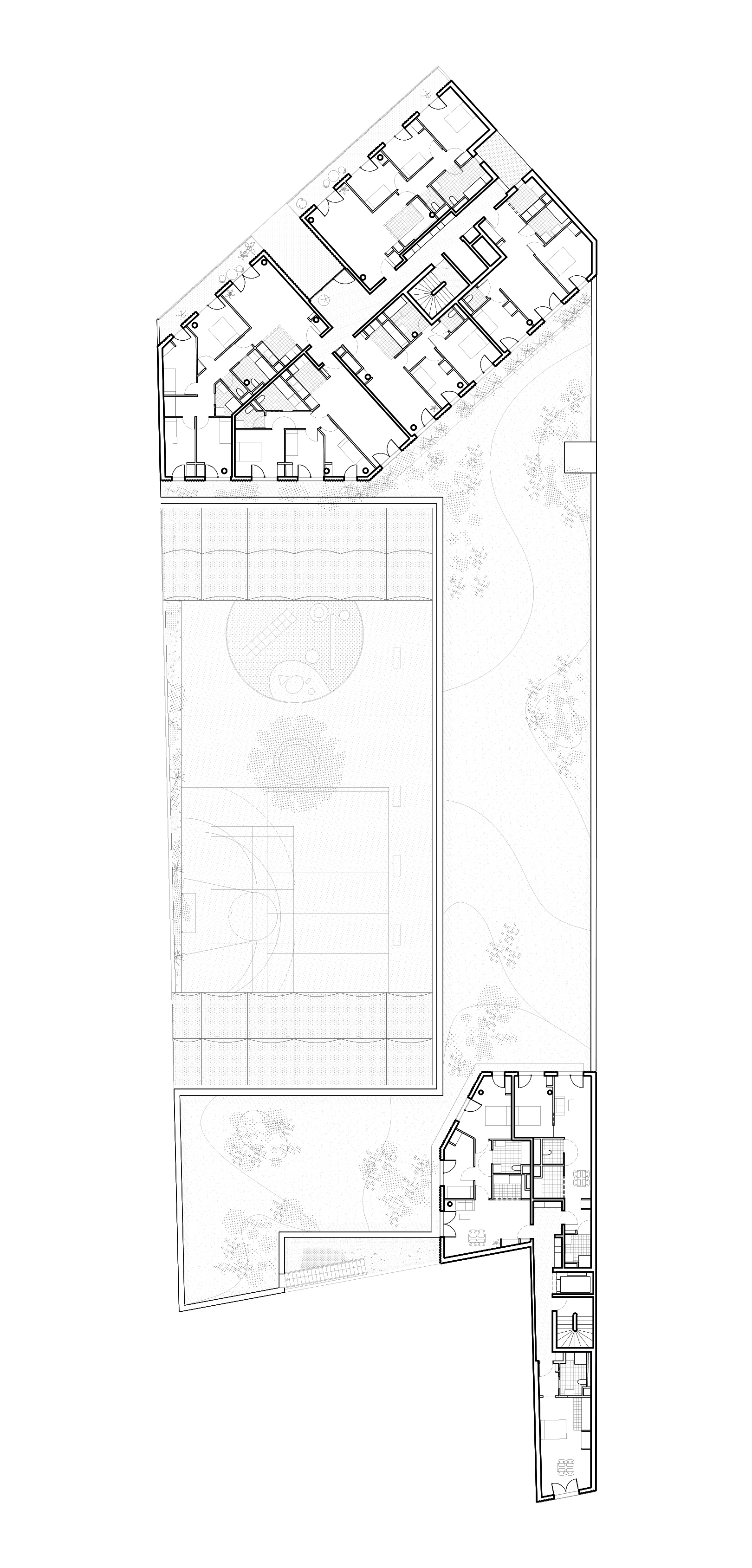
DATA

2017 – 2024, Paris 8e
École élémentaire et logements
ARCHITECTES : DATA
BE : NICOLAS INGENIERIE, BATISERF, BUREAU MICHEL FORGUE, META, FRANCK BOUTTE, CUISINE INGENIERIE
MOA : Élogie-Siemp
6 500 m²
© Maxime Delvaux (photos maquettes) © BG-studio (perspective)