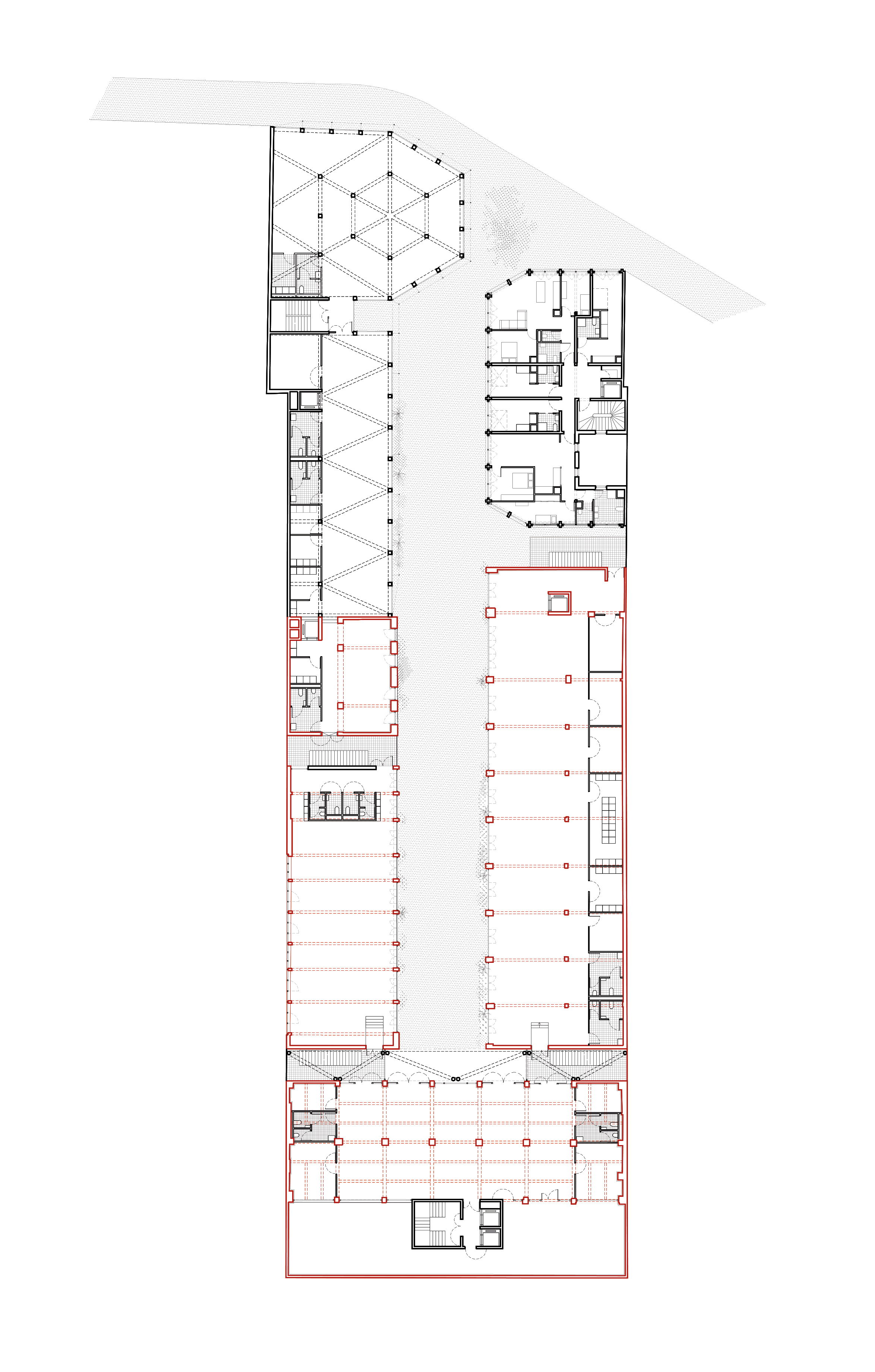
DATA
2019 – 2024, Paris 10e
Bureaux, logements sociaux et commerces
ARCHITECTES : DATA + Think Thank
BE : EVP, SINTEO, BMF, ACOUSTIQUE VIVIE, VS-A, AREP, Atelier Roberta
MOA : SNC Cour La Fayette
10 500 m²
© Javier Callejas (photos site)
LAF
Rue La Fayette